昆明「子君山麓城」售楼部电话_2月最新公告_房价走势及优惠查询_春节动态更新
扫描到手机,新闻随时看
扫一扫,用手机看文章
更加方便分享给朋友
子君山麓城售楼处电话:0871-63635335(售楼中心)
金牌置业顾问:15025182832(微信同步)
售楼中心地址:0871-63635335(致电发送详情地址)
看房需提前来电预约登记,享售楼处内部特惠,看房车全程免费接送
【子君山麓城】
建筑类型:叠墅、联排、双拼
占地面积:3000亩
建筑楼层:4层
容 积 率:1.03
装修状况:毛坯交付
产权年限:70年
规划户数:954户
交房时间:全景现房
物业:中瑞物业
物业费:
叠加3.5元/㎡月,别墅4.8元/㎡月
价格:399万-3000万
首付比例:15%起
【 项目地址】
ADD:云南省昆明市官渡区广卫立交桥旁(子君山公园风景区)

【项目背景】
子君山麓城项目由云南宗逸置业有限公司开发建设,是深圳中瑞投资集团有限公司旗下的地产开发公司之一;集团总部位于深圳,于2003年成立。集团投资类型涵盖了城市更新、产业小镇、商业地产、高端精品住宅开发等板块。
在昆明,我们与政府联手打造子君山生态运动旅游度假区,整个项目投入超过50亿,未来将成为整个南市区、乃至是昆明的城市旅游度假新地标;子君山麓城将是整个片区内唯一的高端低密纯别墅现房项目。
【区位生活圈】“子君山·麓城”位于昆明市主城官渡区,地处昆明南市区核心地带,项目周边南屏街,昆明长水机场,昆明南站。此外,项目紧邻昆明轨道交通四号线已通车,最近地铁站广卫站,项目片区居民的出行方式更为便捷。
【项目概况】前拥繁华万象,后享自然半山,“离尘不离城”,难得大隐于市1、稀缺的土地及资源价值子君山麓城项目总占地约3000亩,房屋用地仅660亩,其他有550亩运动公园及1800亩的森林,容积率为1.03,建筑密度29.96%,住宅绿地率高达46.76%。在昆明主城,体量超过3000亩,容积率为1的土地仅此一块!项目规划为纯别墅用地,自2016年别墅用地正式停止审批,2019年“禁墅令”颁布后,在昆明您再也找不出这样绝版的土地,项目建成后将是昆明乃至西南首席顶级的生态养生城市纯别墅社区!
绝无仅有的圈层体验住宅7个地块总户数954户,在3000亩的土地上,别墅住宅总户数仅954户,只有少数人享有,圈层才能更加纯粹。
难得半山别墅整个项目位于子君山原生台地之上,地块背靠千亩原生山脉,西北低东南高,呈缓坡攀升之势。是典型的半山别墅!
住在公园里的房子整个项目是被公园森林绿地所环绕:其中约1800亩为完整重现的自然生态美学公园,包含了生态山林、以及位于山门处的迎宾公园已率先呈现(约80亩,包含了健身广场、情人草坪、景观叠水等);郊野运动公园用地约550亩(包含负氧离子跑道、森林网球场、足球场、攀岩探险、树屋营地、以及已开始建设的绿色高尔夫体验基地等休闲配套于一体);高端配套用地约50亩(集星级酒店、山林SPA、室内恒温泳池、顶级城市会所等于一体)。10000平米人工湖(万平人工湖)将于2024年后陆续呈现。
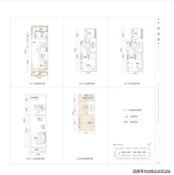
【产品户型图】在售主要为联排产品错层联排(中户)C2 户型:350㎡
子君山麓城售楼部咨询电话:0871-63635335 【咨询中心】
子君山麓城官方售楼处电话:0871-63635335 【咨询中心】
子君山麓城专属金牌置业顾问:15025182832【微信同步】
看房需提前来电预约登记,享售楼处内部特惠,不接受临时到访!
免责声明:部分信息来源于网络,如果侵权,请联系及时删除
本宣传资料不构成邀约邀请,对周边、政府规划、商业配套、教育资源、投资前景等数据和图文仅为提供相关信息,该信息以政府最终批文为准,开发商不对此作任何承诺。买卖双方的权利义务以双方签订的买卖合同约定及附件、实际交付为准,本公司保留对宣传资料修改的权利,敬请留意最新资料。联系电话:0871-63635335
声明:本文由入驻焦点开放平台的作者撰写,除焦点官方账号外,观点仅代表作者本人,不代表焦点立场。


