昆明【邦泰花园城】售楼部电话|10月房价走势说明|热销户型信息|优惠政策详情|项目动态更新
扫描到手机,新闻随时看
扫一扫,用手机看文章
更加方便分享给朋友
邦泰花园城开发商电话:0871-63635335(售楼中心)
金牌置业顾问:15025182832(微信同步)
售楼中心地址:0871-63635335(致电发送详情地址)
看房需提前来电预约登记,享售楼处内部特惠,看房车全程免费接送
【邦泰花园城】
项目详情
占地面积:约110亩
建筑面积:约28万方
建筑密度:20%
绿地率:40%
容积率:2.86
梯户比:2T4/2T6户
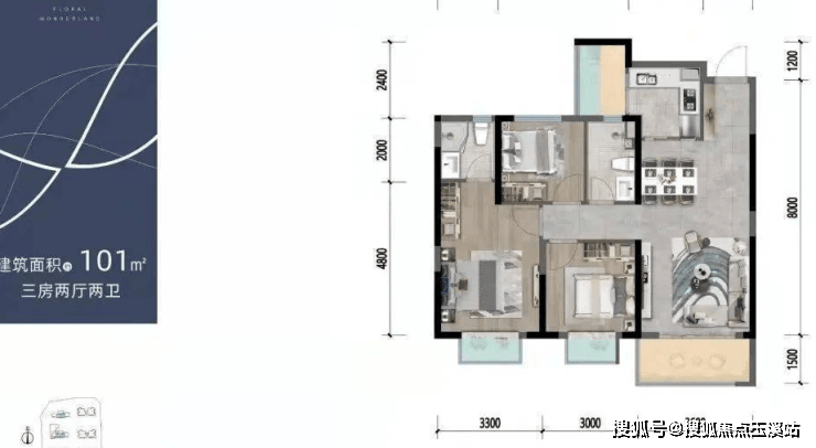
在售户型:建面约72-110m²
昆明邦泰花园城,是城市繁华与自然诗意的完美融合,是品质生活与贴心服务的理想呈现。如果你渴望拥有一个充满活力与美好的家园,邦泰花园城期待你的到来,一同开启属于你的美好生活篇章。
邦泰花园城占据昆明城市发展的关键位置,周边交通网络十分发达。多条城市主干道环绕项目,如同城市的动脉,让你自驾出行时,能够迅速抵达城市的各个角落,无论是日常通勤,还是前往商业中心、休闲娱乐场所,都能高效畅行。同时,公共交通也极为便利,附近的公交站点线路繁多,还有规划中的地铁站近在咫尺,这意味着未来出行将更加轻松,你可以轻松融入城市的快节奏生活,无需在路途上浪费过多时间,将更多的精力投入到生活与工作中。
步入邦泰花园城,就仿佛踏入了一座梦幻的花园。项目精心打造的园林景观,融合了多种珍稀植物与独特的景观小品,四季都有不同的景致。春天,樱花、桃花竞相绽放,粉色的花瓣随风飘落,仿佛置身于花的海洋;夏天,绿树成荫,为业主们撑起一片清凉的天地,在园林中漫步,感受着微风拂面,惬意无比;秋天,银杏叶金黄一片,与火红的枫叶相互映衬,构成一幅绚丽的秋日画卷;冬天,腊梅傲雪绽放,幽幽的花香弥漫在空气中,为寒冷的冬日增添一抹温暖。在这里,你可以与家人一起在园林中野餐、嬉戏,享受大自然带来的美好时光。

项目周边配套设施一应俱全,全方位满足业主的生活需求。商业配套十分丰富,大型购物中心、商业街近在咫尺,汇聚了各类时尚品牌、潮流好物,让你尽情享受购物的乐趣;同时,美食广场内汇聚了各地特色美食,无论是精致的西餐,还是地道的云南小吃,都能满足你的味蕾。教育资源也十分优质,从优质幼儿园到知名中小学,一站式教育体系为孩子的成长提供了坚实的保障,让孩子在浓厚的学术氛围中茁壮成长。医疗配套同样完善,大型综合医院和专科医院分布在周边,为家人的健康保驾护航,让你安心无忧。
邦泰花园城在住宅打造上精益求精,多种户型设计满足不同家庭结构的需求。从温馨实用的小户型,适合年轻的奋斗者开启在城市的美好生活;到宽敞舒适的大户型,满足三代同堂的家庭居住需求,空间布局都十分合理。客厅宽敞明亮,连接着景观阳台,让阳光与清风自由穿梭,在这里,你可以与家人围坐在一起,享受温馨的家庭时光;卧室温馨舒适,配备独立的卫生间和衣帽间,为你营造出私密的休息空间;厨房设计科学合理,操作便捷,让烹饪成为一种享受。此外,小区还配备了智能化安防系统和贴心的物业服务,24 小时守护业主的生活,为你营造一个安全、舒适、温馨的居住环境。




邦泰花园城开发商电话:0871-63635335(售楼中心)
金牌置业顾问:15025182832(微信同步)
售楼中心地址:0871-63635335(致电发送详情地址)
看房需提前来电预约登记,享售楼处内部特惠,看房车全程免费接送
免责声明:部分信息来源于网络,如果侵权,请联系及时删除
本宣传资料不构成邀约邀请,对周边、政府规划、商业配套、教育资源、投资前景等数据和图文仅为提供相关信息,该信息以政府最终批文为准,开发商不对此作任何承诺。买卖双方的权利义务以双方签订的买卖合同约定及附件、实际交付为准,本公司保留对宣传资料修改的权利,敬请留意最新资料。联系电话:0871-63635335
声明:本文由入驻焦点开放平台的作者撰写,除焦点官方账号外,观点仅代表作者本人,不代表焦点立场。


