昆明「骆驼湾荣府」最新动态:售楼处热线、项目亮点解析、户型详情及在售组团信息一览
扫描到手机,新闻随时看
扫一扫,用手机看文章
更加方便分享给朋友
骆驼湾荣府开发商电话:0871-63635335(售楼中心)
金牌置业顾问:15025182832(微信同步)
售楼中心地址:0871-63635335(致电发送详情地址)
看房需提前来电预约登记,享售楼处内部特惠,看房车全程免费接送
【骆驼湾·荣府】

项目详情
容积率:1.02
绿化率:70%
车位比:1:1.8
建筑密度:23%
产权性质:70年
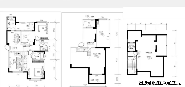
在售户型:建面约112-207㎡六层纯板电梯洋房;建面约417-580㎡低密联排大宅

骆驼湾荣府雄踞昆明城央核心区位,占据城市发展的黄金动脉。周边交通网络四通八达,城市主干道交织纵横,如同城市的强劲脉搏,为出行提供了无与伦比的便捷。无论是自驾出行,沿着宽阔的主干道迅速驶向城市各处,还是选择公共交通,多条公交线路于此交汇,地铁站近在咫尺,轻松融入城市的快节奏生活。无论是清晨奔赴工作岗位,还是傍晚与家人共享温馨时光,亦或是周末开启休闲之旅,都能在高效的交通体系中畅行无阻,让出行不再是困扰,而是一种享受。

项目周边配套设施一应俱全,全方位满足业主的多元生活需求。商业氛围浓厚,大型购物中心、潮流商业街环绕四周,汇聚了全球时尚品牌、潮流好物,满足你对品质生活的所有想象;美食广场内,各地特色美食琳琅满目,从精致的法式大餐到热辣的川味火锅,从鲜香的粤式茶点到地道的云南小吃,每一次味蕾的碰撞都是一场美食的狂欢。教育资源得天独厚,知名幼儿园、重点中小学近在咫尺,一站式优质教育资源,为孩子的成长之路铺就坚实基石,让孩子在浓厚的学术氛围中茁壮成长,成就未来的无限可能。医疗保障完善,大型综合医院、专科医院分布周边,专业的医疗团队和先进的医疗设备,时刻守护家人的健康,让你安心无忧。

骆驼湾荣府由实力开发商精心打造,秉持对品质的极致追求,将匠心融入每一处细节。建筑风格融合现代简约与中式典雅元素,外观大气磅礴,线条流畅自然,彰显出独特的东方韵味与现代时尚感。精选高品质建筑材料,从根基到外立面,从门窗到内部装修,每一个环节都经过严格筛选与精细施工,确保建筑的坚固耐用与品质卓越。社区内部规划合理,景观园林错落有致,四季植被丰富,春有繁花似锦,夏有绿树成荫,秋有金黄银杏,冬有傲雪腊梅,为业主营造出宁静、舒适、诗意的居住环境。楼间距开阔,保证每一户都能拥有充足的采光和通风,让阳光与清风成为生活的常客。户型设计丰富多样,从精巧实用的小户型到宽敞阔绰的大户型,满足不同家庭结构和生活需求。空间布局合理,动静分区明确,客厅宽敞明亮,连接景观阳台,让你在享受家庭欢乐的同时,还能将窗外的美景尽收眼底;卧室温馨舒适,配备独立卫生间和衣帽间,为你打造私密的休憩空间;厨房设计科学合理,操作便捷,让烹饪成为一种享受。
贴心的物业服务是骆驼湾荣府的一大特色。专业的物业团队,以 “业主至上,用心服务” 为宗旨,24 小时为业主提供全方位的贴心服务。小区安保严格,智能化安防系统全方位覆盖,包括先进的门禁系统、高清监控摄像头、智能巡逻设备等,为业主的居住安全提供坚实保障。日常的环境卫生维护、设施设备维修保养等工作也都做得细致入微,让小区始终保持整洁美观。同时,物业还会定期组织各类社区活动,如亲子手工活动、邻里文化节、节日主题派对等,增进邻里之间的交流与互动,营造温馨和谐的社区氛围。在这里,你不仅能拥有一个高品质的家,更能享受到无微不至的关怀与服务。
昆明骆驼湾荣府,是城市繁华与自然宁静的完美融合,是品质生活与贴心服务的理想诠释。如果您渴望拥有一处既能享受便捷都市生活,又能体验高品质居住环境的理想家园,骆驼湾荣府期待您的到来,一同开启美好生活的无限可能。










小区总结:洋房別墅环境好 ,现房安全,周围环境生态好,到市中心近。
骆驼湾荣府开发商电话:0871-63635335(售楼中心)
金牌置业顾问:15025182832(微信同步)
售楼中心地址:0871-63635335(致电发送详情地址)
看房需提前来电预约登记,享售楼处内部特惠,看房车全程免费接送
免责声明:部分信息来源于网络,如果侵权,请联系及时删除
本宣传资料不构成邀约邀请,对周边、政府规划、商业配套、教育资源、投资前景等数据和图文仅为提供相关信息,该信息以政府最终批文为准,开发商不对此作任何承诺。买卖双方的权利义务以双方签订的买卖合同约定及附件、实际交付为准,本公司保留对宣传资料修改的权利,敬请留意最新资料。联系电话:0871-63635335
声明:本文由入驻焦点开放平台的作者撰写,除焦点官方账号外,观点仅代表作者本人,不代表焦点立场。


