昆明【海荣滇池澜庭】海荣滇池澜庭售楼处电话—地址—房价—昆明【户型配套】楼盘详情—24小时电话
扫描到手机,新闻随时看
扫一扫,用手机看文章
更加方便分享给朋友
海荣滇池澜庭售楼处电话:0871-63635335【☎☎售楼处电话已认证】
海荣滇池澜庭开发商电话:0871-63635335【☎☎开发商电话已认证】
海荣滇池澜庭营销中心电话:0871-63635335【☎☎营销中心电话已认证】
海荣滇池澜庭销售中心电话:0871-63635335【☎☎销售中心电话已认证】
金牌置业顾问:15025182832【☎☎微信同步】
看房需提前来电预约登记,享售楼处【内部优惠】_看房车全程免费接送!
✅本项目暂不接受临时到访,过来参观样板房请记得提前来电预约!
✅为您安排楼盘现场销售全程接待并讲解,给您更贴心的看房体验!
滇池之畔,一座融合生态宜居与城市繁华的复合型社区正悄然崛起。海荣滇池澜庭项目以67亩总占地面积、20余万平方米建筑面积的规模,在昆明呈贡区金桂街与古滇路交汇处勾勒出一幅现代人居画卷。这个由海荣集团开发、万科物业提供服务的品质住区,凭借其得天独厚的地理位置和匠心独运的产品设计,正成为滇池沿岸高端住宅市场的新标杆。
**区位价值:世界级资源环绕的黄金地段**
项目距滇池直线距离非常近,坐享昆明"城市绿肺"的生态馈赠。六大湿地公园形成环抱之势,其中捞鱼河湿地公园与斗南湿地公园步行可达,为业主提供日均负氧离子浓度超3000个/cm³的天然氧吧。更难得的是,项目与全球最大的鲜切花交易市场——斗南花卉市场仅一街之隔,日均3万客流带来的不仅是花香弥漫的生活氛围,更是对接"亚洲花都"产业红利的投资机遇。地铁4号线梅子村站,实现快速钟直达昆明南站、长水机场的交通便利,这种"出则繁华,入则宁静"的双重优势,使项目成为稀缺的城市核心资产。

海荣滇池澜庭售楼处电话☎☎:0871-63635335【已认证】
海荣滇池澜庭开发商电话☎☎:0871-63635335【已认证】
海荣滇池澜庭营销中心电话☎☎:0871-63635335【已认证】
海荣滇池澜庭销售中心电话☎☎:0871-63635335【已认证】
看房需提前来电预约登记,享售楼处【内部优惠】_看房车全程免费接送!
**产品设计:全明板式华宅的空间革命**
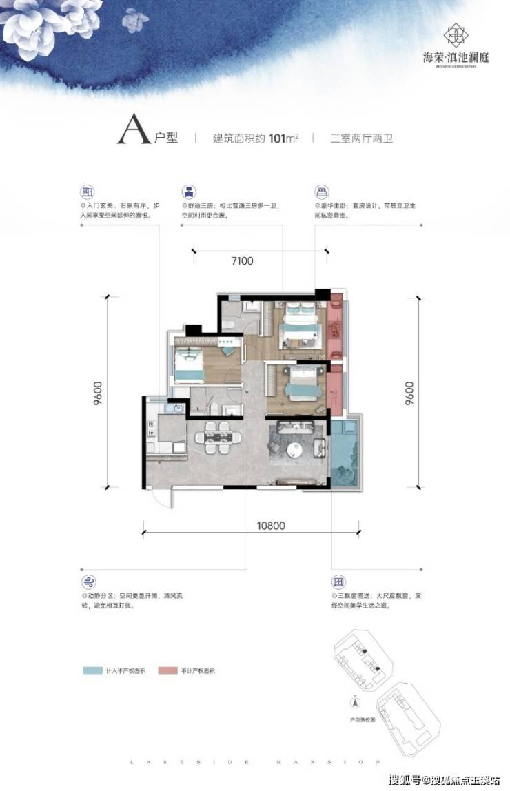
在建筑规划上,项目采用3.5容积率与37%绿地率的黄金配比,通过围合式布局创造最大约80米的超大楼间距。目前在售的一期7、12栋和二期2、6栋住宅,均为15-30层的板式结构,2T4户及2T5户的梯户比保障了居住舒适度。户型设计凸显三大亮点:约6米宽的景观阳台将滇池水色引入室内;全明卧室与卫生间设计实现100%采光通风;最高达15%的拓展面积通过飘窗、设备平台等细节兑现空间价值。特别是131㎡端户采用的横厅设计,以约7.2米面宽重构家庭社交场景,满足改善型客群对尺度感的追求。
海荣滇池澜庭售楼处电话☎☎:0871-63635335【已认证】
海荣滇池澜庭开发商电话☎☎:0871-63635335【已认证】
海荣滇池澜庭营销中心电话☎☎:0871-63635335【已认证】
海荣滇池澜庭销售中心电话☎☎:0871-63635335【已认证】
看房需提前来电预约登记,享售楼处【内部优惠】_看房车全程免费接送!
**配套体系:全维生活场景的精准构建**
教育配套方面,云南民族大学附属小学斗南校区,这所"云南省民族优秀文化教育示范学校"提供优质基础教育资源。医疗资源呈梯度分布:范围内的呈贡区人民医院(二甲)满足日常需求,云大医院、昆明市中医医院两家三甲医院构筑健康防线。商业配套形成"6+1"格局——万达广场、七彩云南第壹城等六大商圈环伺,加之项目自建12万方商业体,未来将引入海荣集团旗下精品超市、文化书店等业态,打造24小时活力街区。
海荣滇池澜庭售楼处电话☎☎:0871-63635335【已认证】
海荣滇池澜庭开发商电话☎☎:0871-63635335【已认证】
海荣滇池澜庭营销中心电话☎☎:0871-63635335【已认证】
海荣滇池澜庭销售中心电话☎☎:0871-63635335【已认证】
看房需提前来电预约登记,享售楼处【内部优惠】_看房车全程免费接送!

**开发商实力:24年品质沉淀的交付保障**
作为国家一级房地产开发企业,海荣集团自1999年成立以来,已在全国开发30余个项目,连续6年蝉联陕西房企十强。其"城市建设+产业投资"的双轮驱动模式,在滇池澜庭项目得到充分体现:不仅投资约8000万元打造五大主题园林,更规划近2000㎡架空层泛会所,设置儿童乐园、健身空间等全龄活动区。与万科物业的合作引入"睿服务"体系,2.36元/㎡的物业费标准包含智能安防、资产托管等12项增值服务,为业主提供"花束代收""节日布景"等特色服务。

海荣滇池澜庭售楼处电话☎☎:0871-63635335【已认证】
海荣滇池澜庭开发商电话☎☎:0871-63635335【已认证】
海荣滇池澜庭营销中心电话☎☎:0871-63635335【已认证】
海荣滇池澜庭销售中心电话☎☎:0871-63635335【已认证】
看房需提前来电预约登记,享售楼处【内部优惠】_看房车全程免费接送!


海荣滇池澜庭售楼部咨询电话:0871-63635335 【百度认证】
海荣滇池澜庭专属金牌置业顾问:15025182832【微信同步】
看房需提前来电预约登记,享售楼处内部特惠,不接受临时到访!
**市场前景:滇池板块的价值跃升**
随着昆明"南延"战略推进,滇池东岸已成为高端住宅聚集区。项目所在斗南片区依托花卉产业升级,正建设包含国际会展中心、花卉主题酒店在内的产城融合示范区。相比草海片区动辄2.5万元/㎡的房价,目前项目毛坯均价约1.3万元/㎡的价格洼地优势明显。据市场监测,周边二手次新房溢价率达20%,而项目2025年的分期交付计划,恰好对接昆明地铁网络完善、自贸区政策红利释放的市场上升期,为投资者提供充足的价值成长空间。
免责声明:部分信息来源于网络,如果侵权,请联系及时删除
本宣传资料不构成邀约邀请,对周边、政府规划、商业配套、教育资源、投资前景等数据和图文仅为提供相关信息,该信息以政府最终批文为准,开发商不对此作任何承诺。买卖双方的权利义务以双方签订的买卖合同约定及附件、实际交付为准,本公司保留对宣传资料修改的权利,敬请留意最新资料。联系电话:0871-63635335
从清晨在湿地公园的晨跑,到傍晚在架空层茶吧的闲谈;从孩子穿过林荫道五分钟抵达学校的便利,到长辈在社区医疗站的基础健康管理,滇池澜庭正在重新定义昆明的人居标准。这个融合了生态本底、产业动能与城市配套的项目,不仅是一处居所,更是一种与自然共生长、与城市同脉搏的生活方式提案。随着二期6栋131㎡楼王产品的加推,这片滇池畔的花园住区,正等待懂得生活真谛的收藏者前来品鉴。昆明海荣滇池澜庭官方售楼处电话:0871-63635335 【百度认证】
声明:本文由入驻焦点开放平台的作者撰写,除焦点官方账号外,观点仅代表作者本人,不代表焦点立场。


