昆明【招商依云国际】项目介绍_区域位置_展厅位置_售楼处电话_欢迎来电咨询
扫描到手机,新闻随时看
扫一扫,用手机看文章
更加方便分享给朋友
招商依云国际社区开发商电话:0871-63635335【售楼中心】
金牌置业顾问:15025182832【微信同步】
售楼中心地址:0871-63635335【致电发送详情地址】
看房需提前来电预约登记,享售楼处内部特惠,看房车全程免费接送
招商依云国际社区|央企巨制 世界春城的花园国际社区
一、项目简介

总规图(以最终规划为准)
招商·依云国际社区,由百年招商局旗下招商蛇口开发,1988年4月1日招商局发起并创办新中国第一家股份制商业保险机构 – 平安保险公司。截至2021年底招商局集团,营业收入9362亿元、同比增幅15.1%,利润总额2121亿元、同比增幅21.1%,净利润1692亿元、同比增幅23.4%。集团资产总额11.68万亿元,净利润与资产规模蝉联央企第一。
项目总占地面积约1697亩,总建面约248万方,内部规划国际风尚商业街、国际五星酒店、全龄教育配套、高端SOHO办公、国际化康养医院、养老中心、购物中心是集教育、医疗、文化、交通、休闲于一体的国际化居住胜地
融合低碳生活、绿色生态、多元文化、数字化管理、多样化公共配套资源。秉承新加披规划之父——刘太格先生60多年新加坡规划理念 首创云南首个花园城市。
运用花园城市的四大原则:分层级高绿化覆盖、链接公园绿地形成景观廊道系统,多维度立体景观、景观融入共享服务型建筑,以花园城市设计理念为蓝本,打造一街、四园、五坊、多点,为业主带来最佳的居住体验。
二、项目全能配套
立体交通

区位图
“一港”:昆明长水国际机场
“二铁”:沪昆高铁、渝昆高铁
“六路”:杭瑞高速、嵩昆大道、空港大道、绕城高速、嵩昆高速、320国道
“两轨”:新区轨道2号线以及嵩明快线。
片区:新区市政大动脉嵩昆大道邻项目而过,联通主城环线,规划中嵩明线、新区轻轨2号线,项目内部无缝接驳昆明主城区。项目内部有6条主干道,分别为沐春大道、栖夏大道、颂秋大道、吟霜大道、彩韵大道、渲花大道,整体以春夏秋冬为主题,并配合不同的树木花卉,营造四季多彩的生活体验。
滇中新区 再启新篇
2021年9月8日,滇中新区成功举行线上推介会,重点推介5470余亩储备土地。
其中小哨国际新城共8宗357亩,用地性质以商业商务用地为主。大规划推动大发展,滇中空港,未来可期!
2021年10月9日,伴随着轰鸣的工程车喇叭声与热情的掌声,云南省昆明空港经济区2021年第四季度项目集中开工仪式举行。此次集中开工云南航空职业学院等11个优质项目,深入打造产业强区新高地。
片区内最大医疗康养配套
项目规划有一座三甲综合医院与一座康养医院,在综合医院方面,我们将配合政府积极引入国内知名医院,以加强整个昆明的医疗实力;除此之外,项目内部还将打造一座健康养老中心,涵盖养老及1000平米的老年俱乐部。
目前,招商美伦健康中心,即将投入运营。
昆明美伦健康中心,由招商局集团旗下招商蛇口投资,并由招商美伦健康提供健康管理服务,是全国第六家招商美伦健康,延续招商美伦先进的服务理念和服务体系,旨在为“昆明招商依云国际”项目业主打造智慧康养健康管理服务体系,创建健康美好生活圈。
分成智慧医疗展示大厅、全科咨询室、康复理疗室,主要为依云国际社区客户提供健康咨询服务、健康检测服务、智能体测服务、中医健康测评服务及理疗体验服务等。
示意图
引入优质教育资源
项目内部规划有6所幼儿园,2所小学,1所30班中学,形成从幼儿园到初中一站式教育体系,预计引入优质教育资源。
示意图
片区内唯一双地铁TOD商业
项目规划有国际五星级酒店,国际高端公寓,将会引进高端国际酒店品牌,国际餐饮娱乐机构,为国际商务人士提供高端的休闲场所。
本案配有三大商圈+一条主题商业街,形成项目独有的商业环。三大商圈分别为中心商业,以及邻里商圈,分布在项目的上中下。
招商积余
招商物业拥有国家一级物业管理企业资质,是国内最早以产权为纽带、以资产管理为核心的规模化、品牌化和集团化物业管理企业。
2021年1-9月,招商积余实现营业收入75.91亿元,较上年同期增长26.98%;归属于上市公司股东的净利润3.82亿元,较上年同期增长15.78%;截至报告期末总资产167.05亿元。截至2021年9月末,物业管理业务覆盖全国逾100个城市,管理项目合计1626个,管理面积2.15亿㎡。
三、在售地块——低密舒居·向美而生
A4/A5地块基础数据
占地面积:3.2万㎡
建筑面积:5.7万㎡
容积率:1.8
建筑密度:26%
绿地率:40%
物业类型:洋房

规划示意图
【设计风格】
A4地块运用了江南园林的设计风格,注重空间的营造和层次变化,最终形成了一轴三庭六巷多廊的景观体系,并运用对景、框景、漏景、借景和障景里的现代表现手法和特色铺装来表达中式韵味。
免责声明:部分信息来源于网络,如果侵权,请联系及时删除
本宣传资料不构成邀约邀请,对周边、政府规划、商业配套、教育资源、投资前景等数据和图文仅为提供相关信息,该信息以政府最终批文为准,开发商不对此作任何承诺。买卖双方的权利义务以双方签订的买卖合同约定及附件、实际交付为准,本公司保留对宣传资料修改的权利,敬请留意最新资料。联系电话:0871-63635335
【A4地块规划】
小区内规划有8栋洋房、11栋合院和一所12班幼儿园,总户数为506户,机动车位678个,车位比为1:1.34,公共设施及生活配套十分齐全,有生鲜超市、社区体育活动场所、老年服务站、社区文化活动场所、社区卫生服务站、物业管理中心等,生活十分便利。

【A3地块基础数据】
占地面积:7.7万㎡
建筑面积:18.4万㎡
容积率:2.4
建筑密度:27%
绿地率:40%
物业类型:高层、叠拼
【A3地块位置优势】
东:紧邻城市规划主要道路
南:紧邻城市50M城市主干道(哨关大道)
西:临近嵩昆大道,间隔140M防护绿地
北:贴临公共绿化带
项目地块处于交通便利地段,且紧邻规划地铁站。未来周边城市道路体系成熟,城市通达性好,出行交通便利。
【户型展示】
高层A户型:约77㎡
高层B户型:约87㎡
高层C户型:约99㎡
洋房A户型:约114㎡
洋房C户型:约143㎡
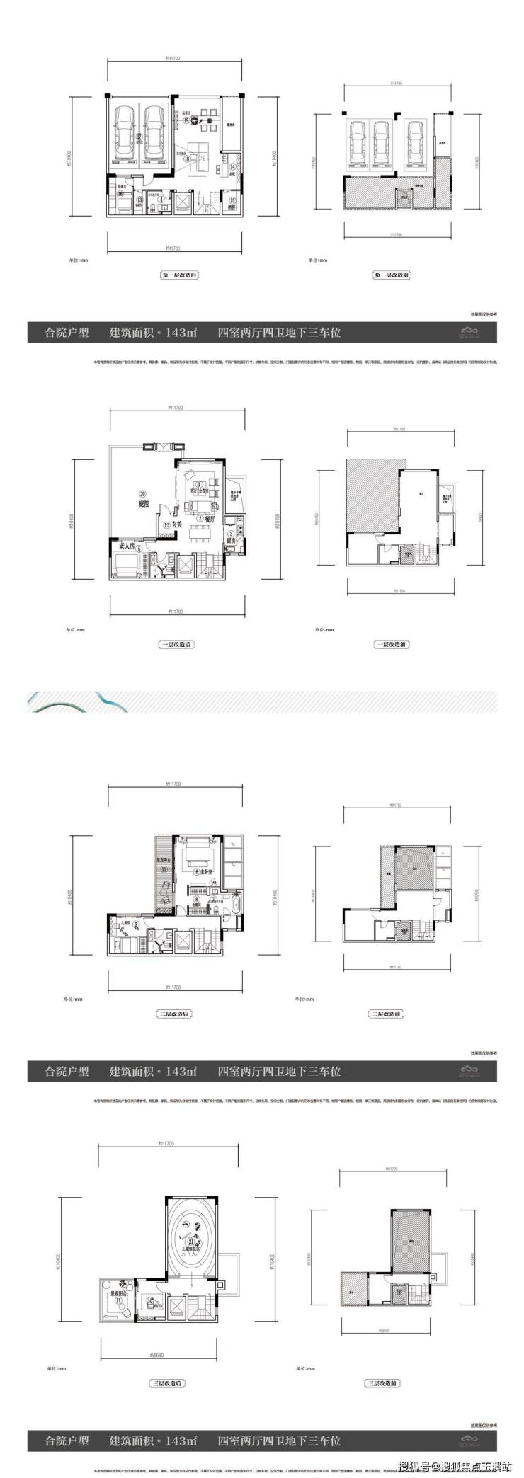
合院:约143㎡
招商依云国际社区售楼部咨询电话:0871-63635335 【百度认证】
招商依云国际社区官方售楼处电话:0871-63635335 【百度认证】
招商依云国际社区专属金牌置业顾问:15025182832【微信同步】
看房需提前来电预约登记,享售楼处内部特惠,不接受临时到访!
声明:本文由入驻焦点开放平台的作者撰写,除焦点官方账号外,观点仅代表作者本人,不代表焦点立场。


