昆明【义承金川府】/知名开发商/售楼处电话/小区配套/在售户型
扫描到手机,新闻随时看
扫一扫,用手机看文章
更加方便分享给朋友
义承金川府售楼处热线☎:0871-63635335【已认证】
义承金川府专属金牌置业顾问☎:15025182832【微信同步】
在售户型图丨项目介绍丨最新房源丨周边配套丨详细解答〢
◆开发商售楼部诚挚邀请,一键预约,尊享内部独家折扣!匠心独运的精品项目,恭候您的品鉴与选择。
五华区【义承金川府】主城墅区孤品 成就典范人居 构建西市模范生活圈
【区域介绍】 | 高新区与西北新城双区交汇
项目择址海源北路与西三环交汇处,交通条件得天独厚,能够避开城区拥堵,快速通达北市区、南市区及市中心,同时项目处于高新区与西北新城交汇处,既能享受高新区多年醇熟的配套,又能享受西北新城高速成长的发展红利。
【核心卖点】
1、高新一小片区天花板 ,上学邻距离
2、全自有资金开发,1 梯 2 户洋房,超高得房率近0公摊
3、约1.83超低容积率现房,即买即办证
4、昆明首个物业分红社区
【项目介绍】
【占地面积】140亩
【建筑面积】28万方
【容积率】1.83
【绿化率】40%
【产权年限】70年
【住宅楼栋数】36栋
【总户数】1437
【交付标准】毛坯
【产品类型】6-12层洋房叠墅
【面积区间】建面约89-123㎡低密花园洋房;建面约140-232㎡高拓展城市叠墅
【梯户比】1T2
【得房率】93-101%
【层高】6-12层
【交房时间】现房
【用水用电】民水民电
【物业费】洋房2.6元/平/月 ,叠墅3.8元/平/月
【物业公司】承义物业
【停车位】1:1.2
【开发商】昆明西山土地房屋开发经营(集团)有限公司
【项目位置】 云南省昆明市五华区海源北路高新一小旁
【项目配套】
【园林】内拥7.7万方山水园林,外享全维醇熟配套
【交通配套】 多维交通,快速通达全城,拥享8条公交线路、地铁4/7(规划中)号线、海源北路、西三环等多条城市干道
【商业配套】七大商圈,生活圈,坐拥醇熟商圈,周边汇聚首创奥特莱斯商圈、宜家购物中心、西城时代商圈、吾悦广场商圈、昆百大商圈等七大商圈及海源寺集市,吃喝玩乐购,满足一站式家庭生活需求。
【生态配套】六大公园,悦享诗意栖居,项目周边郊野公园、海源寺公园、翠峰公园、眠山公园、棋盘山公园、筇竹寺公园等六大公园环伺,主城鲜氧生活场,从此跃入自然。
【医疗配套】医疗护航,健康生活有“医”靠,云南省阜外心血管病医院(三甲医院),位于云南省昆明市五华区沙河北路528号,还有正在建设中的五华区人民医院新院区。位于海源北路的延安医院高新分院。昆明医学院附属第二医院、云南省肿瘤医院,众多的公立医院均在项目便捷生活圈内,为您和家人的健康保驾护航。
【教育配套】模范教育 :高新一小9月开学,配套持续升级。
义承金川府开发商电话:0871-63635335 【开发商已认证】☎
一、品牌:义承置业——昆明首个物业分红开发商
1、推倒重来,拒绝狗尾续貂
不同于其他开发商在烂尾楼的基础上加盖,义承·金川府全部推倒重来!30天花费1.5亿爆破,60天从废墟到1栋封顶,2年实景呈现。无论是拿地起楼,还是提前呈现,都体现了“义承实力”。
2、全自有资金打造,演绎西城榜样
义承置业源起于浙江,布局全国,截止目前累计开发二十余个高端精品项目。2021年正式落子昆明,义承·金川府是义承置业入昆首作,不同于市面上的“高周转项目”,金川府是全自有资金打造,无任何开发贷,雄厚资金保障,保证项目稳健运营。
3、昆明首个不赚钱物业——承义物业
延续义承精神,承义物业坚持物业非盈利原则,回归服务本质,践行模范企业社会责任。账本晒在阳光下,费用全透明,提升业主居住安全感。
二、产品:片区改善天花板,王者级产品力
1、市场罕见的100%纯板设计
金川府墅质洋房/叠墅,采用市场罕见的100%一字纯板式设计,1T2梯户比,无连廊设计,公摊小,私密足。纯板洋房,规划10-12层,建筑高度不超过36米,最大限度将建筑融于自然。
2、片区产品最抗打,超高得房
建面约89㎡户型相当于市场上建面约115㎡户型产品;98㎡户型相当于市场上135㎡户型产品;123㎡户型相当于市场上165㎡户型。低公摊高得房,同等面积更低价格,更大享受。
3、 保值先锋,重磅配套持续升级中
期房VS现房:期房担心减配烂尾,金川府洋房/叠墅品质现房呈现,无需等待,即买即住即办证
筒子楼VS洋房/叠墅:筒子楼居住人口多,人员混杂,生活舒适度低,金川府纯低密墅质洋房/叠墅,最高36米建筑高度,把更多空间留给舒适
中学地块即将签约知名学校,教育配套持续升级兑现。
A2地块即将重磅推新,高层住宅,超高赠送面积,多重游园式主题景观,是您的资产配置首选。
三、园林:不计成本园林造景,社区天然大氧吧
约1.83超低容积率,超4000万园林造景成本。约7.7万方游历式山水园林,全冠移植,单棵最高约38万121种特色景观苗木,约20000㎡城市绿地公园。

义承金川府开发商电话:0871-63635335 【开发商已认证】☎
【产品信息】
【约89-123㎡低密花园洋房】
【格局方正】南北通透,科学设计,无浪费空间;
【阔景客厅】客厅连通阳台,约25㎡阔绰空间;
【百变空间】灵活百变,承载墙少,可改造空间大;
【超高得房】双飘窗赠送,近零公摊。

【全明户型】户型方正,南北通透,明厨明卫设计;
【百变横厅】客厅改造后可升级约6.6米横厅;
【豪华主卧】主卧约3.6米大开间,豪华套房设计;
【U型厨房】约7㎡U型厨房设计,满足多人同时烹饪;
【花园阳台】约11㎡空中阔景花园阳台;
【超高拓展】高达约18㎡赠送空间,近零公摊。

【全明户型】户型方正,南北通透,明厨明卫设计;
【百变横厅】客厅改造后可升级约6.6米横厅;
【豪华主卧】主卧约3.6米大开间,豪华套房设计;
【阔绰餐厨】餐厨一体化设计,约16㎡阔绰空间;
【花园阳台】约12㎡空中阔景花园阳台;
【超高拓展】约7.5㎡入户花园、双飘窗赠送,近零公摊。

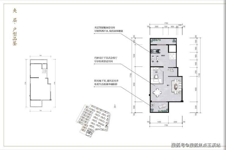
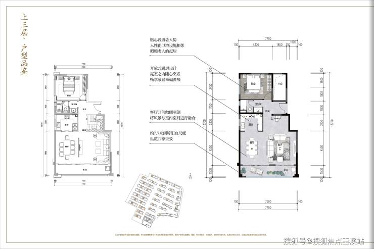
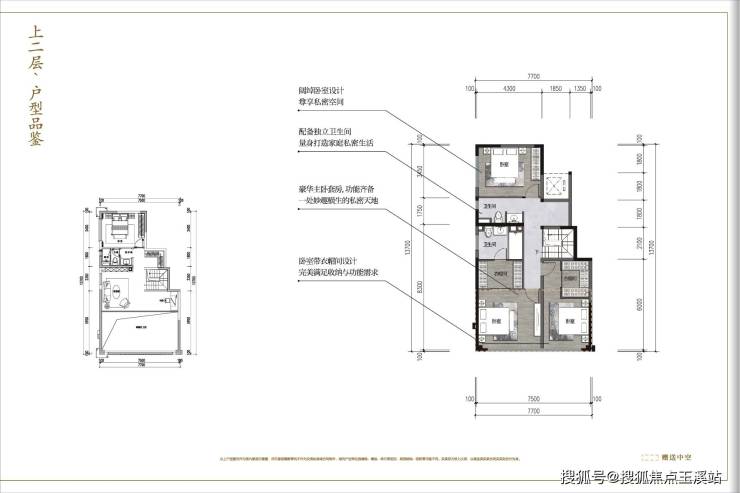
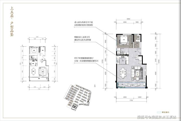
【约140-232㎡高拓展城市叠墅】
【D1户型 | 栖林 | 建面约172㎡ | 总赠送面积约167㎡ | 改造后面积339㎡】
义承金川府开发商电话:0871-63635335 【开发商已认证】☎
【D2户型 | 观山 | 建面约162㎡ | 总赠送面积约160㎡ | 改造后面积322㎡】
【D3户型 | 凌云 | 建面约155㎡ | 总赠送面积约142㎡ | 改造后面积297㎡】
义承金川府开发商电话:0871-63635335 【开发商已认证】☎
【实景图+效果图】
义承金川府开发商电话:0871-63635335 【开发商已认证】☎
【重点学校】
高新一小,西市最强小学
西市发展最快:20余年跻身名校 / 三大小学校区 / 集团化办学
西市师资最优:546名在岗教师 / 约97.5%本科及以上学历 / 50余名硕士 / 40余名在职研究生 / 2名特级教师
西市荣誉最多:“教育部——中国移动中小学校长培训项目”实践基地、国际生态学校、云南省现代教育示范学校、云南省教育科研实验学校
西市课程最全最有特色:高尔夫、武术、射箭、啦啦操、3D打印、创客模型、机器人搭建、拉丁舞、鼓乐、古筝、葫芦丝、国学经典欣赏等
家校一体:学校更好,学校就在小区里,无需接送,真正实现家校0距离,每天全家人多睡半小时

义承金川府售楼处电话:0871-63635335【售楼中心】☎☎☎
义承金川府金牌置业顾问:15025182832【微信同步】
✅本项目暂不接受临时到访,过来参观样板房请记得提前来电预约!
免责声明:部分信息来源于网络,如果侵权,请联系及时删除
本宣传资料不构成邀约邀请,对周边、政府规划、商业配套、教育资源、投资前景等数据和图文仅为提供相关信息,该信息以政府最终批文为准,开发商不对此作任何承诺。买卖双方的权利义务以双方签订的买卖合同约定及附件、实际交付为准,本公司保留对宣传资料修改的权利,敬请留意最新资料。联系电话:0871-63635335
声明:本文由入驻焦点开放平台的作者撰写,除焦点官方账号外,观点仅代表作者本人,不代表焦点立场。


